Выполнение чертежа в AutoCAD презентация

Слайд 1Курсовой проект

Выполнение чертежа в AutoCAD
Лист 3

часть 1 из 2


Слайд 22. Разрез по зданию
3. Несущие элементы
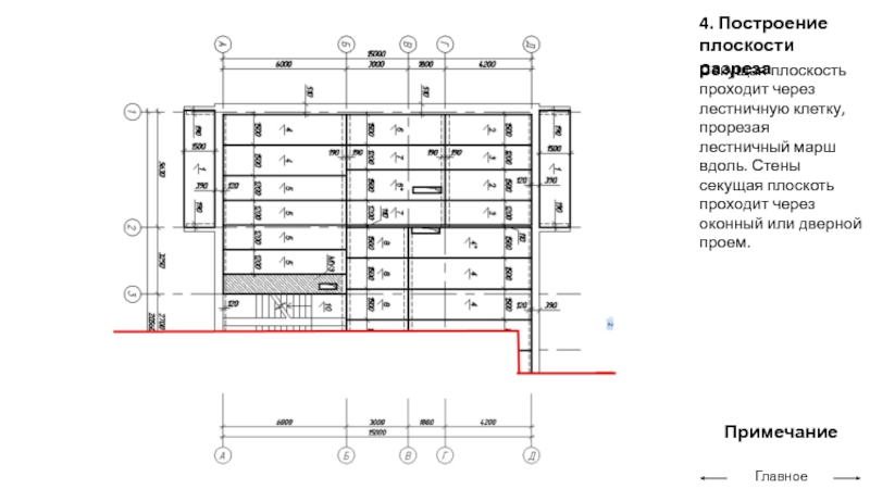
4. Построение плоскости разреза
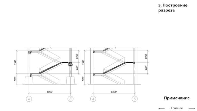
5. Построение разреза
6.

Разрез по несущим элементам (Каркасная система)

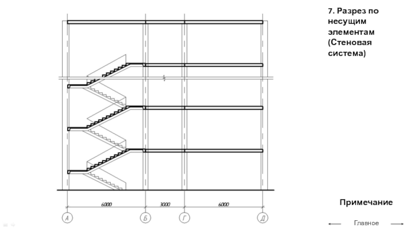
7. Разрез по несущим элементам (Стеновая система)

Лист 3

1. Теория


Слайд 31. Теория
Главное меню

Примечание


Слайд 42. Разрез по зданию
Главное меню
Примечание



Слайд 5Основная геометрия несущих элементов в разрезе
3. Несущие элементы
Главное меню


Примечание


Слайд 6Секущая плоскость проходит через лестничную клетку, прорезая лестничный марш вдоль. Стены

секущая плоскоть проходит через оконный или дверной проем.

4. Построение плоскости разреза


Главное меню



Примечание


Слайд 75. Построение разреза
Главное меню


Примечание


Слайд 86. Разрез по несущим элементам (Каркасная система)
Главное меню


Примечание


Слайд 97. Разрез по несущим элементам (Стеновая система)
Главное меню


Примечание


Обратная связь

Если не удалось найти и скачать презентацию, Вы можете заказать его на нашем сайте. Мы постараемся найти нужный Вам материал и отправим по электронной почте. Не стесняйтесь обращаться к нам, если у вас возникли вопросы или пожелания:

Email: Нажмите что бы посмотреть 

Что такое ThePresentation.ru?

Это сайт презентаций, докладов, проектов, шаблонов в формате PowerPoint. Мы помогаем школьникам, студентам, учителям, преподавателям хранить и обмениваться учебными материалами с другими пользователями.


Для правообладателей

Яндекс.Метрика