Восстановление валов, осей презентация

Содержание

Слайд 1Восстановление валов, осей


Слайд 2


Слайд 3Посадка подшипников на вал с заплечиками


Слайд 4Посадка подшипников на вал с втулкой


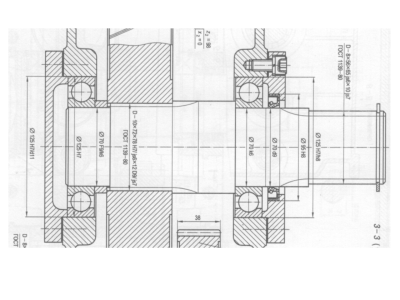
Слайд 7Посадка подшипников на вал с втулкой и шестерней


Слайд 8Заплечики для установки подшипников качения (по ГОСТ 20226-82) В.И. Анурьев, Т.2 с. 177-180


Слайд 9Допуски формы посадочных поверхностей валов, мкм, не более В.И. Анурьев, Т.2 с.

166-168

Допуск круглости


Слайд 10Допуски формы посадочных поверхностей валов, мкм, не более В.И. Анурьев, Т.2 с.

166-168

Допуск профиля продольного сечения


Слайд 11Допуски формы посадочных поверхностей валов В.И. Анурьев, Т.2 с. 166-168
Допуск торцового биения

заплечиков


Слайд 12Параметры посадки В.И. Анухин с. 93


Слайд 13Варианты установки подшипников В.И. Анухин с. 93


Слайд 14Допуски формы посадочных поверхностей валов, мкм, не более В.И. Анухин, с. 122-130
Допуск

радиального биения
Рассчитывается и выбирается по ГОСТ 24643-81

Слайд 16Допуски формы посадочных поверхностей валов В.И. Анухин, с. 122-130
Допуск радиального биения посадочной

поверхности для зубчатого колеса

Слайд 17Допуски формы посадочных поверхностей валов В.И. Анухин, с. 122-130
Допуск радиального биения поверхности

вала под манжетное уплотнение

Слайд 18Допуски формы посадочных поверхностей валов В.И. Анухин, с. 122-130
Допуск радиального биения посадочной

поверхности для муфт, шкивов

Слайд 22Допуски формы посадочных поверхностей валов В.И. Анухин, с. 122-130
Допуск симметричности расположения боковых

сторон шлицев

Слайд 27Допуски формы посадочных поверхностей валов В.И. Анухин, с. 122-130
Допуск симметричности расположения шпоночного

паза, отклонения на глубину и длину

Слайд 28Канавки для выхода шлифовального круга
(по ГОСТ 8820-69)
В.И. Анухин с.217


Слайд 30Параметры шероховатости В.И. Анухин с. 99


Слайд 36В.И. Анурьев
Т.2 с.12


Слайд 37В.И. Анурьев Т.2 с.13


Слайд 38В.И. Анурьев Т.2 с.14


Обратная связь

Если не удалось найти и скачать презентацию, Вы можете заказать его на нашем сайте. Мы постараемся найти нужный Вам материал и отправим по электронной почте. Не стесняйтесь обращаться к нам, если у вас возникли вопросы или пожелания:

Email: Нажмите что бы посмотреть 

Что такое ThePresentation.ru?

Это сайт презентаций, докладов, проектов, шаблонов в формате PowerPoint. Мы помогаем школьникам, студентам, учителям, преподавателям хранить и обмениваться учебными материалами с другими пользователями.


Для правообладателей

Яндекс.Метрика